
Vanaf € 299,-
Ga je verbouwen en denk je bijvoorbeeld aan een dakopbouw, aanbouw of zelfs een nieuwbouwwoning? Dan is een houten dakconstructie vaak een slimme en praktische keuze.
Voor het maken van een houten dakconstructie heb je een constructieberekening nodig. Met deze constructieberekening van de houten dakconstructie beschik je over een veilig en betrouwbaar constructief ontwerp. Zo voldoe je aan de geldende regelgeving en weet jouw aannemer precies hoe het dak moet worden gebouwd.
Veel vooroorlogse woningen hebben houten vloeren of houten daken. Later zijn er vaker betonnen daken toegepast. Wil je een aanbouw, bijgebouw of dakopbouw bouwen? Dan is een houten dak vaak de beste oplossing.
Hout is namelijk een duurzaam en licht materiaal dat goed te bewerken is door de aannemer. Houten dakconstructie zijn daarom perfect geschikt voor kleinere bouwwerken.
Je ziet ook dat er vaak een combinatiedak door de constructeur wordt ontworpen. In dat geval bestaat de dakconstructie uit hout en staal. Zo worden beide materialen optimaal gebruikt.

Onze standaardlevertijd is 3 weken. Heb je haast? Dan kun je gebruik maken van onze spoedtarieven. Met onze spoedtarieven kunnen wij ook een levertijd van 2 weken of zelfs 1 week aanbieden. In overleg is het vaak ook mogelijk binnen 48 uur de houten dakconstructie berekening op te leveren.
Meer informatie over onze spoedtarieven vind je in onze offerte.

Jouw constructeur heeft 2 belangrijke taken.
Zorgen voor een veilig constructief ontwerp
Zorgen voor een bouwkosten besparend ontwerp
De constructeur moet dus zorgen voor een veilig ontwerp, terwijl jouw bouwkosten laag blijven. De bouwkosten blijven laag door het gebruik van zo min mogelijk materiaal. Ook moet de constructeur ervoor zorgen dat het werk goed uitvoerbaar is voor de aannemer. Zo blijven ook de arbeidskosten laag.
Dat is gelijk het verschil tussen een goede en minder goede constructeur. Een minder goede constructeur zorgt voor een veilig ontwerp met hogere bouwkosten.
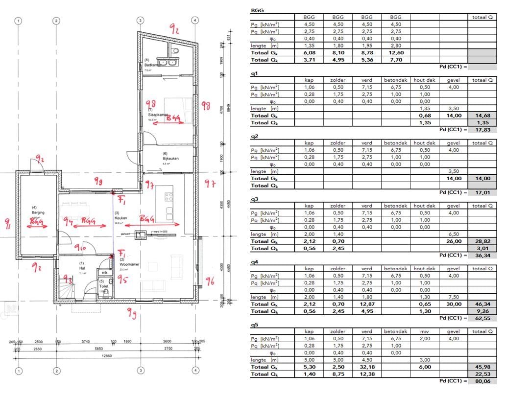
Bouwplan dakconstructie aannemer
Dankzij de constructietekening van de constructeur kun jij offertes opvragen bij aannemers. Daarna kunnen de aannemers de constructietekening gebruiken tijdens de uitvoering van het werk.
Hieronder vind je enkele voorbeelden van constructietekeningen met houten dakconstructies.




Er zijn veel verschillende soorten houten dakconstructies die worden toegepast. De keuze hiervoor hangt af van bijvoorbeeld de grootte van de woning, het uiterlijk van de woning en de kosten. Daarbij geldt, hoe simpeler het dak, hoe goedkoper de houten dakconstructie.
Verschillende soorten houten dakconstructies
- Platte daken
- Puntdaken
- Combinatie daken (punt en plat)
- Schilddak
- Sporendak
- Gordingendak
- Zadeldak
Samen met jouw architect en constructeur bepaal je welk type dak het beste past bij jouw wensen.




Het is onze missie om slechte bouwprojecten te voorkomen. Dat begint bij heldere en betrouwbare constructieberekeningen waar jouw aannemer direct mee aan de slag kan. Maar voor ons stopt het niet bij alleen een goed rapport.
Wij begeleiden je tijdens het hele verbouwproces. Heb je vragen over jouw verbouwing, de kosten, het vergunningstraject of het constructief ontwerp? Dan kun je ons altijd bellen. Ons team staat voor je klaar om je te helpen en mee te denken, zodat jouw verbouwing soepel en zonder verrassingen verloopt.
